6M Baustellencontainer
7.000,00 € Der anfängliche Preis betrug: 7.000,00 €.4.999,00 €Der aktuelle Preis beträgt: 4.999,00 €.
Der 6-Meter-Baucontainer ist ein robustes und isoliertes Fertigmodul, geeignet für verschiedene professionelle Anwendungen. Es ist eine ideale Lösung für die schnelle Einrichtung von Arbeits-, Wohn- oder Lagerräumen auf Baustellen oder in industriellen Umgebungen.
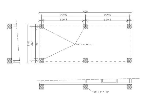
Abmessungen
- Außen:
- Länge: 609 cm
- Breite: 242 cm
- Höhe: 241 cm
- Gebiet: 14,7 m²
- Innere:
- Länge: 593 cm
- Breite: 226 cm
- Höhe: 220 cm
- Gebiet: 13,4 m²
Rahmen
- Material: Verzinkter und lackierter Stahl
- Farbe: Lichtgrau RAL 9002 (andere Farben optional erhältlich)
- Stärke: mm 1,5
- Sockel: Höhe 95 mm, Dicke 1,5 mm
- Dach: Höhe 150 mm, Dicke 1,5 mm
- Handhabung: 4 Dachaufnahmen für Kranhaken
Wände und Dach
- Material: Sandwichplatten
- Isolierung: Hartschaum aus Polyurethan
- Wände: 40 mm stark, Farbe lichtgrau RAL 9002
- Dach: 30 mm dick, gleiche Farbe
- Abdeckung: Verzinktes Stahlblech mit griechischen Wellen
- Regenwasserablauf: an den kurzen Seiten
Boden
- Struktur: Wasserabweisende Spanplatten
- Stärke: mm 18
- Belag: PVC-Linoleum (optional auch für stark beanspruchte Flächen oder andere Ausführungen erhältlich)
Tischlerei
- Material: Weiß lackiertes Aluminium RAL 9010
- Tür: 1 teilverglasten Tür (104 x 220 cm), 90 cm Durchgang, vergittert, Einfachverglasung klar
- Fenster: 1 Schiebefenster (104 x 110 cm), vergittert, Einfachverglasung klar
Elektroinstallation
- Spannung: 220 V
- Beleuchtung: 2 x 18 W LED-Neonlichter
- Schalter: 1 Schalter neben der Tür
- Steckdosen: 2 Steckdosen
- Heizung: 1 elektrischer Konvektor 1500 W
- Schalttafel: 1 Schalttafel mit Differenzialschalter und Leistungsschaltern (maximale Leistung 6 kW)
- Anschluss: 1 externe Anschlussbox
- Standardpositionen können im Plan geändert werden (Steckdosen unter dem Panel, Konvektor unter dem Fenster)
Optionen
- Anpassbare Farben (Rahmen, Paneele, Tischlerei)
- Deckenhöhe auf 2,40 m erhöht (Türhöhe bei 2,20 m gehalten)
- Verstärkter Boden (160 mm) mit Gabelstaplerdurchfahrt (90 cm Achsabstand)
- Basis auf Kufen (2 IPE-Träger 160 mm)
- Toilettenbereich mit Waschbecken, Dachfenstern, Trennwänden, Beleuchtung (Warmwasser optional)
- Duschbereich mit Warmwasser
- 4 Regenfallrohre zum Boden
- Zusatztüren: halbverglast, vollverglast oder verglast
- Zusätzliche Fenster: Standard, Erker, Snackbar, Theke mit Hygiene-Screen
- LED-Panels statt Neonröhren
- Rollläden aus Aluminium oder PVC (Stangen erhältlich), Farbauswahl
- 16 mm Holz-Zement-Bodenbelag für Feuchträume oder zur Direktverlegung
- Strapazierfähiger PVC-Boden, Parkettimitat oder rutschfestes Aluminium
- Spezifische Wände: glatt, lebensmittelecht, feuerbeständig, Steinwolle
- Entfernung von Gitterstäben: kostenlos
- Zusatzbuchsen, RJ45 Buchsen
- Klimaanlage :
- Reversibel 2300 W
- Fenster 12000 BTU (nur kühlen)
- 3400 W, reversibler Split (nur Giebel)
- Wendbares Mobile mit Fensterbausatz
- Küchenzeile: Einzelspüle, Warmwasser, Kochplatten, Kühlschrank
MAECENAS IACULIS
Vestibulum curae torquent diam diam commodo gebärend penatibus nunc dui adipiscing convallis bulum gebärfähig suspendisse gebärfähig a.Geburt in gebärfähig scelerisque nibh lectus quam a natoque adipiscing a vestibulum hendrerit et pharetra fames nunc natoque dui.
ADIPISCING CONVALLIS BULUM
- Vestibulum penatibus nunc weist auf eine Adipositas convallis bulum parturient suspendiss hin.
- Abitur parturient präsentiert Lectus Quam und Natoque Adipiscing in Vestibulum Händen.
- Durchmesser bedeutet parturient parturient scelerisque nibh lectus.
Scelerisque Adipiscing Bibendum Sem Vestibulum und in aaa Purus Lectus Faucibus Lobortis Tincidunt Purus Lectus Nisl Klasse Eros.
Ähnliche Produkte
Container 15‘ Fuß gelb
- Das komplett verschweißte Containergerüst besteht aus 3 mm starkem Stahlprofil. Ihre Wände und ihr Dach bestehen aus 1,5 mm starkem Profilstahl. Sie verfügen über eine 2-flügelige Tür über die gesamte Breite mit einem Einbruchschutzsystem. Sie haben Lufteinlässe an den Wänden. Ihr Boden besteht aus 25 mm dickem Massivholz mit Anti-Feuchtigkeits-Behandlung. Ihr Dach verfügt über vier Aufnahmepunkte für Hebehaken, die Basis ermöglicht den Durchgang von Gabeln zum Anheben mit einem Gabelstapler.
-
ARTIKELDETAILS
CARACTÉRISTIQUES
RAHMENExt Dim (in m) 4,50 x 2,20 x 2,25 Dim int (in m) 4,30 x 2,07 x 2,02 Volumen (in m3) 18 Tragfähigkeit (in kg) 9000
WÄNDE UND DECKEBeschreibung Vollverschweißtes Stahlprofil Dicke 3mm
FLOORBeschreibung Laminiertes Blatt Dicke 1,5mm
VERSANDBeschreibung Anti-Feuchtigkeits-behandeltes Massivholz Dicke 25mm
BEWEGUNG / HEBENAnordnung auf die Breite Türen 2 Dichtung Gummidichtungen Sicherheit Vorhängeschloss-Schutzverschluss Chariot élévateur Steckdosen für lange Gabeln (90 cm Abstand) Kran 4 Steckdosen in den Ecken für Hebehaken
-
